„Darf es ein bisschen mehr sein?“ – Nein, betont die Ratsfraktion WfU (Wir für Unna). Auch die Linke.Volt will diesem Bauprojekt nicht zustimmen.
Die Rede ist von dem geplanten Einzelhandelszentrum in Unna-Massen auf einer derzeitigen Grünfläche an der Massener Bahnhofstraße. Dort ist wie berichtet seit vielen Jahren eine Supermarkt-Ansiedlung geplant – ursprünglich Edeka und Lidl, jetzt ein Edeka plus eine Drogerie, dazu Wohnbebauung und jede Menge Parkplätze.
Der Erstinvestor Löhr warf aufgrund jahrelanger Verschleppungen das Handtuch, die Ten Brinke-Gruppe trat als neuer Investor auf den Plan – sie ist in Unna bekannt (bzw. je nach Sichtweise berüchtigt) als Bauherrin des Einkaufszentrums Mühle Bremme neben der Post.
Bei einer Bürgerbefragung vor einigen Jahren stimmten über 60 Prozent der teilnehmenden Massener für eine Lebensmittelversorgung an dieser Stelle. Erbitterten Widerstand leisteten stets die Grünen. SPD und CDU standen und stehen dahinter.
Jetzt offenbart sich das Vorhaben des neuen Investors Ten Brinke erheblich umfangreicher als zuvor geplant.


Die beiden Ratsfraktionen WfU und Linke.Volt, jeweils in dreiköpfiger Fraktionsstärke, erheben lautstark ihre Einwände.
Wir für Unna wirft der CDU eine „Kehrtwende“ vor und kritisiert das scharf.
„Die aktuelle Diskussion rund um die Edeka-Planung in Massen wirft viele Fragen auf“, stellt WfU in einem Statement fest. „Erst wurden die ursprünglichen Pläne mit großem Nachdruck gestoppt – mit Verweis auf Hochwasserschutz und den Erhalt der „grünen Wiese“. Es wurde sogar eine kostspielige Bürgerbefragung durchgeführt.
Am Ende passierte nichts. Der Bebauungsplan wurde ausgesessen, der ursprüngliche Investor (Löhr, d. Red.) verdrängt.
Jetzt wird die deutlich umfangreichere Planung plötzlich positiv bewertet. Der Hochwasserschutz soll keine Rolle mehr spielen, weil eine behördliche Festsetzung ausläuft?
Der Massener Bach hält sich bei Starkregen nicht an politische Stimmungen.
Wir als WfU stehen weiterhin für eine maßvolle, verantwortungsvolle Entwicklung:
moderate Bebauung
integrierter Hochwasserschutz
tragfähige Verkehrslösungen
Planung im Sinne der Bürgerinnen und Bürger.“
Die Erfahrungen mit der Ten Brinke Gruppe und Projekten wie „Mühle Bremme“ hätten gezeigt, so die WfU-Fraktion, wie wichtig klare Grenzen sind.
Eine „Mühle Bremme 2.0“ darf es in Massen nicht geben. Mehr Fläche. Mehr Verkehr. Mehr Risiko. Darf es ein bisschen mehr sein? Nicht um jeden Preis.“
Einen kritischen Blick wirft auch die Linke.Volt-Fraktion auf das Bauvorhaben in Massen.
„Wir begrüßen die aktuelle Diskussion um die Supermarktpläne am Massener Bach“, teilte die Fraktion am Freitag (6. 3.) in einer Presseerklärung mit.
„Insbesondere der Fokus auf den Hochwasserschutz, die Nachhaltigkeit beim Bauvorhaben und die damit bekannten Risiken sind wesentliche Bedenken, die unsere Parteien auch schon im Wahlkampf angesprochen haben und weswegen wir dieses Bauvorhaben auch
weiterhin ablehnen.
Zudem stehen wir skeptisch dem Investor Ten Brinke gegenüber, der landesweit beweist, dass ihm Umsatz wichtiger als Stadtentwicklung ist”,
stellt Vorsitzender Thomas Franta dar. “Sollte der Investor nicht plötzlich seine Prioritäten auf die oben genannten Themen lenken und nicht den Eindruck entstehen lassen, dass er maximalen Profit vor das Wohl der Massener Bürger stellt, werden wir auch weiterhin den Plänen nicht zustimmen.“
Man sei „der festen Überzeugung, dass Umweltschutz, Nachhaltige Bauweise und soziale Verantwortung sich nicht ausschließen”, ergänzt Vorsitzende Hestia van Roest. Die Massener Region sei, was Einkäufe des täglichen Bedarfs angehe, „nicht schlecht aufgestellt“, was die Frage aufwerfe, ob es nicht sinnvollere Nutzungsmöglichkeiten für die Fläche gebe. Allerdings handelt es sich um eine private Fläche, was den Spielraum der Stadt sehr beschränkt.
Linke.Volt hofft jedoch darauf, dass die Planungen für dieses Einkaufszentrum auch zum zweiten Mal gekippt werden. „Der letzte wirkliche
Bürgerdialog zu diesem Thema war in Form der Bürgerbefragung vor gut fünf Jahren“, erinnert Hestia van Roest. „Seitdem haben sich viele Pläne geändert, und der breite Eindruck ist, dass Massen als Stadtteil andere Dinge dringender benötigt als noch einen großen Supermarkt.“
Die Fraktion Die Linke.Volt plane deshalb unter den derzeitigen Voraussetzungen keine Zustimmung.
Quellen: Pressemitteilung Linke.Volt, Facebook-Statement WfU
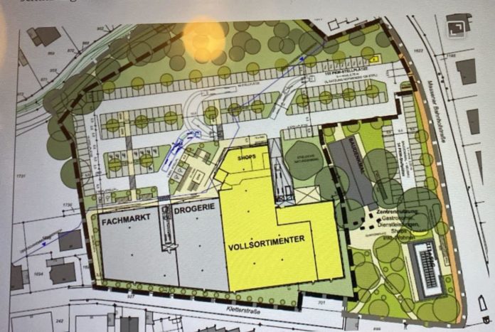
Die Pläne von Ten Brinke
Die Stadtverwaltung Unna stellte die neuen Planungen des Mühle Bremme-Investors in Massen im Juni vorigen Jahres vor. In der damaligen Vorlage hieß es:
Das von Ten Brinke geplante Vorhaben unterscheidet sich wesentlich von dem bislangSeite 3 | 5
geplanten Vorhaben – bisher war die Ansiedlung von einem Vollsortimenter und einem
Discounter geplant. Gegenstand der neuen Planung ist ein Nahversorgungszentrum
…mit Edeka (ca. 1.500 m² VKF), einem Drogeriemarkt (max. 750 m² VKF), einem Nonfood-Fachmarkt (max. 800 m² VKF) sowie ein Wohngebäude mit ca. 11 Wohnungen. Die Märkte werden von der Massener Bahnhofstraße mit einem Parkplatz mit ca. 155 Stellplätzen erschlossen.
Die Bürgerbefragung hatte auch ergeben, dass in Massen eine Drogerie vermisst wird, die
nunmehr im Konzept von Ten Brinke vorgesehen ist. Weiterhin sind einige Aspekte in der nun
vorliegenden Planung enthalten, die den Ergebnissen der zuvor erläuterten Bürgerbefragung
folgen (s. Anlage 2).
Von der Bürgerschaft wurde befürchtet, dass die Nahversorgung in Obermassen durch die
Verlagerung des Edeka-Marktes vom Standort Kleistraße an die Massener Bahnhofstraße
leiden könne. Durch den zurzeit in Bau befindlichen Aldi-Markt an dem Standort Kleistraße
anstelle des ehemaligen Edeka-Marktes kann auch die Nahversorgung in Obermassen
gewährleistet werden. (Der Aldi ist inzwischen fertig, d. Red.).
In dem Vorhabenbezogenen Bebauungsplan sollen eine öffentliche Grünfläche im Norden
entlang des Baches und ein Wohn-/Sondergebiet mit zwei Baukörpern für Wohnungen,
Gastronomie und kleine Läden im Südosten einbezogen werden. In einem neuen
dreigeschossigen Solitärbau mit Staffelgeschoss im Südosten direkt an der Kreuzung zum
Hellweg sollen neue Wohnungen entstehen. Damit soll hier ein neuer attraktiver
Eingangsbereich zum geplanten Einkaufszentrum entstehen.
Das vorhandene Bau- und das Naturdenkmal bzw. die größeren Bäume sollen als
Kernelemente im Eingangsbereich erhalten bleiben und einer gastronomischen Nutzung und
Wohnnutzung zugeführt werden.
Erste Vorabstimmungen mit Fachbehörden haben stattgefunden, um Lösungsmöglichkeiten
für die bereits bei der Vorgängerplanung aufgetauchten und bekannten Problematiken
auszuloten, insbesondere in Sachen Hochwasserschutz und verkehrliche Anbindung. Wegen
der Hochwasserproblematik wurde eine erste Studie zur Entwässerung erstellt, Stadtbetriebe
und Untere Wasserbehörde wurden hierzu bereits beteiligt.
Die Verkehrsplaner Brilon, Bonzio, Weiser aus Bochum halten die verkehrliche Anbindung des
modifizierten Vorhabens als erste Einschätzung für möglich, wenn die Umgestaltung des
Straßenzugs Massener Bahnhofsstraße, Massener Hellweg und Kleistraße – wie in der
gutachterlichen Stellungnahme aus 2021 vorgeschlagen – realisiert würde. BBW hatte damals vorgeschlagen
• die Einmündung Massener Bahnhofstraße/Massener Hellweg mit einer Signalisierung
auszustatten (Ampel)
und
• im Kreuzungsbereich Massener Hellweg/Kleistraße die Aufteilung der Fahrspuren in
Richtung Osten so zu verändern, dass der Geradeaus- und Rechtsabbiege-Verkehr nicht
auf einer Spur, sondern auf zwei Fahrspuren geführt wird.
In der damaligen Untersuchung von BBW wurden die beiden Knotenpunkte hinsichtlich
baulicher sowie betrieblicher Möglichkeiten zur leistungsfähigen Abwicklung des zukünftig zuSeite 4 | 5
erwartenden Verkehrsaufkommens analysiert.
Dabei erwies sich die Signalisierung des heute vorfahrtgeregelten Knotenpunkts Massener Hellweg/Massener Bahnhofstraße in Kombination
mit einer geänderten Fahrstreifenaufteilung auf den Massener Hellweg in den benachbarten Zufahrten an den beiden Knotenpunkten als zweckmäßig.
Zwischen den beiden Knotenpunkten verfügt der Querschnitt des Massener Hellweg über drei Fahrstreifen. Der
mittlere Fahrstreifen wird zurzeit in Fahrtrichtung Westen nur als Fahrstreifen für den sehr
schwach belasteten Linksabbieger vom Massener Hellweg in die Bismarckstraße genutzt. Die
geänderte Fahrstreifenaufteilung auf dem Massener Hellweg sah vor, den mittleren
Fahrstreifen im Bereich zwischen den beiden Knotenpunkten zukünftig zu teilen und an beiden
Knotenpunkten jeweils für den geradeausfahrenden Verkehr entlang des Massener Hellweg zu
nutzen. Es wurde empfohlen, das Linksabbiegen vom Massener Hellweg in die
Bismarckstraße zukünftig nicht mehr zuzulassen, um zu verhindern, dass wartende
Linksabbieger den geradeaus fahrenden Verkehr blockieren. Stattdessen steht die Massener
Bahnhofstraße als nach Norden führende Verbindung zur Verfügung. Mit den beschriebenen
Maßnahmen wird an beiden Knotenpunkten rechnerisch in den Spitzenstunden mindestens
eine „ausreichende“ Verkehrsqualität (d. h. besser als gegenwärtig) erreicht. Das Gutachten
wurde mit dem Straßenbaulastträger Straßen.NRW kommuniziert und erörtert. Auch der
Straßenbaulastträger sieht die vorgeschlagenen Maßnahmen als grundsätzlich
umsetzungsfähig an.
…
Aufgrund der städtebaulich integrierten Lage und der Versorgungsbedeutung der geplanten
Einzelhandelsbetriebe, die sich im Wesentlichen auf den Stadtteil Unna-Massen beziehen,
könnten Kaufkraftabflüsse in andere zentrale Versorgungsbereiche unterbunden werden.
Darüber hinaus würde die geplante Ansiedlung von großflächigen bzw. größeren
Einzelhandelsbetrieben eine Sicherung und Stärkung des zentralen Versorgungsbereiches
bedeuten. Die zu erwartenden Wettbewerbswirkungen des Ansiedlungsvorhabens würden
zudem nicht die wirtschaftliche Tragfähigkeit einzelner ansässiger Betriebe in Frage stellen, so
die Aussage der Einzelhandelsgutachter. Negative Auswirkungen auf zentrale
Versorgungsbereiche und die wohnungsnahe Versorgung könnten somit nach deren Aussage
ausgeschlossen werden. Darüber hinaus entspräche die geplante Einzelhandelsansiedlung
den Zielen der Raumordnung gemäß Landesentwicklungsplan NRW.
Die Verwaltung empfiehlt, auf Grundlage der vorliegenden Informationen die Planung weiter zu
qualifizieren. Insgesamt geht das geplante Vorhaben mit den städtischen Zielsetzungen
konform, an dieser zentralen und fußläufig gut erreichbaren Stelle die Nahversorgung in
Massen weiter zu verbessern und die Attraktivität des zentralen Versorgungsbereiches zu
stärken. Auch Wohnraum wird in Massen dringend benötigt. Der alte Siedlungskern
(Baudenkmal und Baumbesatz) kann größtenteils in das städtebauliche Konzept integriert
werden. Der Altbaubestand muss vor allem restauriert und einer neuen Nutzung zugeführt
werden.
Im nun folgenden Beteiligungsprozess der Träger öffentlicher Belange und anderer
Fachbehörden sind die Gutachten und Planungen zu prüfen, auszuarbeiten und abzustimmen.
Auch die Bürger und Bürgerinnen sollen erneut zu der Planänderung beteiligt werden.“




































